
BAJCO has the ability to bring a visual perspective to your project. Our design program gives the Homeowner the capability to see their new design in different formats > 2D, 3D ( black & white, or color ), & 3D color walk through.
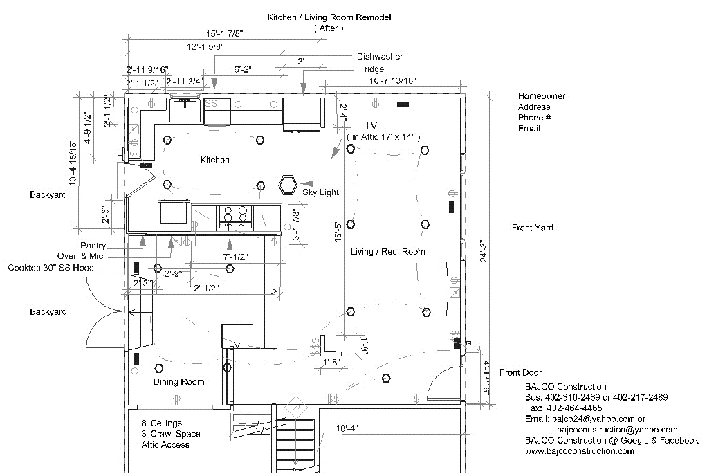
< Here is an example of a Kitchen & Living Room Remodel >
First Step – is to design the existing layout ( before the project )

2D Black & White Existing Layout
2nd Step – proposing a new design that works w/ the Homeowners, & Codes

2D Black & White New Design
3D – Different views of the new design

- 3D Black & White New design

3D Color New Design

3D Black & White New Design

3D Color New Design

3D Black & White New Design

3D Color New Design
3rd Step – approval or changes, then the project process begins
* Pick out items / products & order them.
* Produce a schedule when items / products have arrived.
* Start & finish the project within the scheduled date.